Capannone in vendita

Cherasco, Via Moglia
€ 450.000
10 locali 10 locali
840 Mq 840 Mq
4 bagni 4 bagni

Capannone in vendita

Cherasco, Via Moglia

Descrizione annuncio

CHERASCO: frazione Moglia, comodo al casello autostradale, Capannone in vendita.

Proponiamo in vendita in posizione strategica e comoda all’uscita dell’autostrada (casello di Cherasco), un capannone recente e in perfette condizioni, senza necessità di lavori.

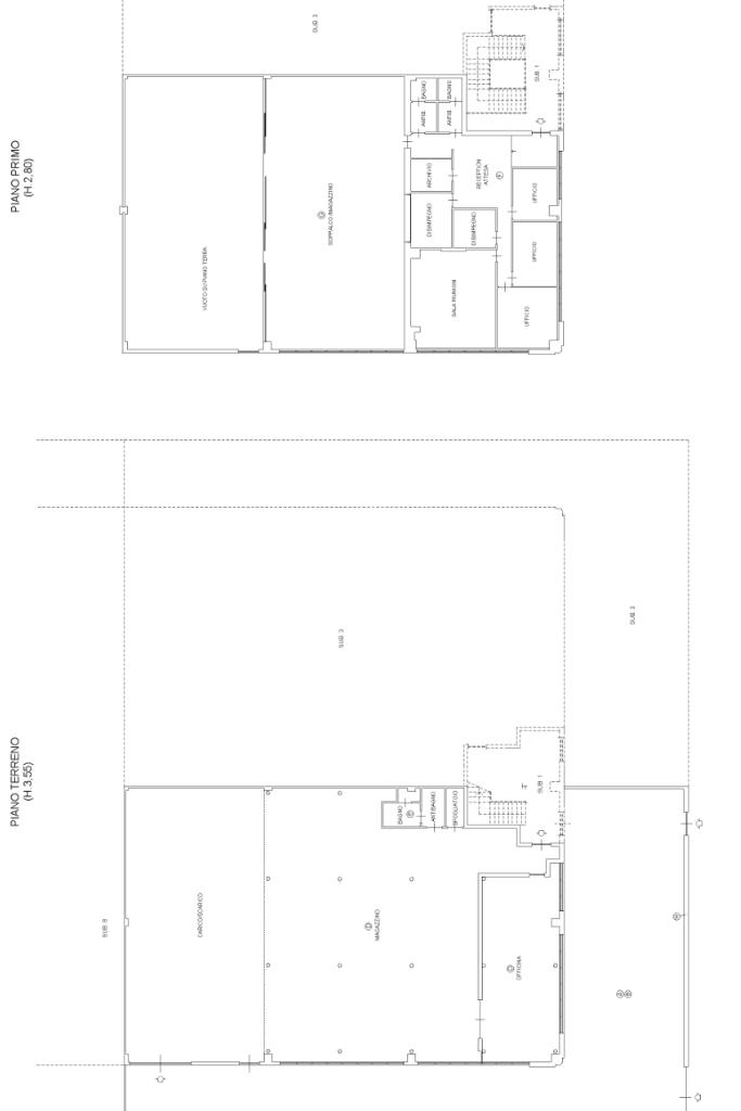
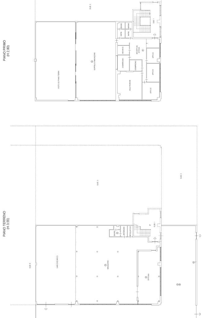
L’immobile si sviluppa su due livelli:

• Piano terra: ampio magazzino di circa 500 mq con area officina, servizi igienici e spogliatoi.

• Piano primo: ingresso su reception, sette uffici luminosi, due bagni e un’area soppalcata di circa 150 mq ideale come archivio o spazio operativo aggiuntivo.

L’immobile, nella zona uffici, è dotato di impianto di riscaldamento e raffrescamento con pompe di calore.

Completa la proprietà un’area esterna di pertinenza, comoda per manovra mezzi e ideale per aziende alla ricerca di spazi moderni, funzionali e pronti all’uso.

Per maggiori informazioni contattarci al num. 3334834663.

Mostra tutto

Nelle vicinanze

Scuole Scuole
Scuole
1,3 Km
Farmacia Farmacia
Farmacia
1,0 Km
Supermercati Supermercati
Dpiu
2,4 Km
Negozi Negozi
Negozi
1,1 Km
Ristoranti Ristoranti
Osteria La Lumaca
970 m
Operti 1772
1,0 Km
La torre
1,1 Km
Morra Restaurant
2,4 Km
Mostra tutto

Caratteristiche

Rif.:
61147977
Piano:
Su più livelli di 2
Totale piani:
2
Posti auto:
5
Condizionamento:
Autonomo
Ascensore:
No
Mostra tutto
Prezzo Prezzo
€ 450.000
Rata mutuo Rata mutuo
€ 2.127 / mese
Spese annue Spese annue
€ 0
Proponi il tuo prezzoProponi il tuo prezzo

Altre caratteristiche

Classe Energetica

Questo immobile è esente da classe energetica
Anno di costruzione:
2007
Riscaldamento:
Autonomo
Tipo impianto:
Ad aria
Tipo alimentazione:
Aria

Ti interessa visionare l'immobile?

Fissa un appuntamento  Fissa un appuntamento

Richiedi informazioni

Clicca su Leggi per aprire l'informativa
* Questi campi sono obbligatori

Calcola il tuo mutuo

Semplice e senza impegno
Anticipo

( % )
Mutuo

( % )

pochi semplici passi

inserisci i tuoi dati
Questionario completato
Grazie per aver richiesto un appuntamento senza impegno con un nostro Consulente del Credito e Assicurativo.

Hai inserito correttamente tutti i dati necessari e a breve riceverai una e-mail con un link da convalidare per inviare i tuoi dati.
Affiliato
Industriale Bra Re Sas
Borgo San Martino, 6 12060 Pocapaglia (CN)

Il nostro staff


  • Davide Leotta
    Affiliato

  • Enrico Caffer
    Collaboratore
Borgo San Martino, 6 12060 Pocapaglia (CN)
Zona: Bra-Pocapaglia-Carmagnola-Racconigi-Cherasco
Mostra su mappa
Affiliato
Industriale Bra Re Sas
Borgo San Martino, 6 12060 Pocapaglia (CN)

2026 Tecnocasa Franchising S.p.A. - P. IVA 08365160152 - Via Monte Bianco 60/A 20089 Rozzano (MI). Ogni agenzia ha un proprio titolare ed è autonoma. Privacy policy | Policy utilizzo | Cookie policy